Model ID#: mu-studio-se
[button class=”lbp-inline-link-specs alignright” color=”#A7BB1B” size=”3″ style=”3″ dark=”1″] Spec Sheet [/button]
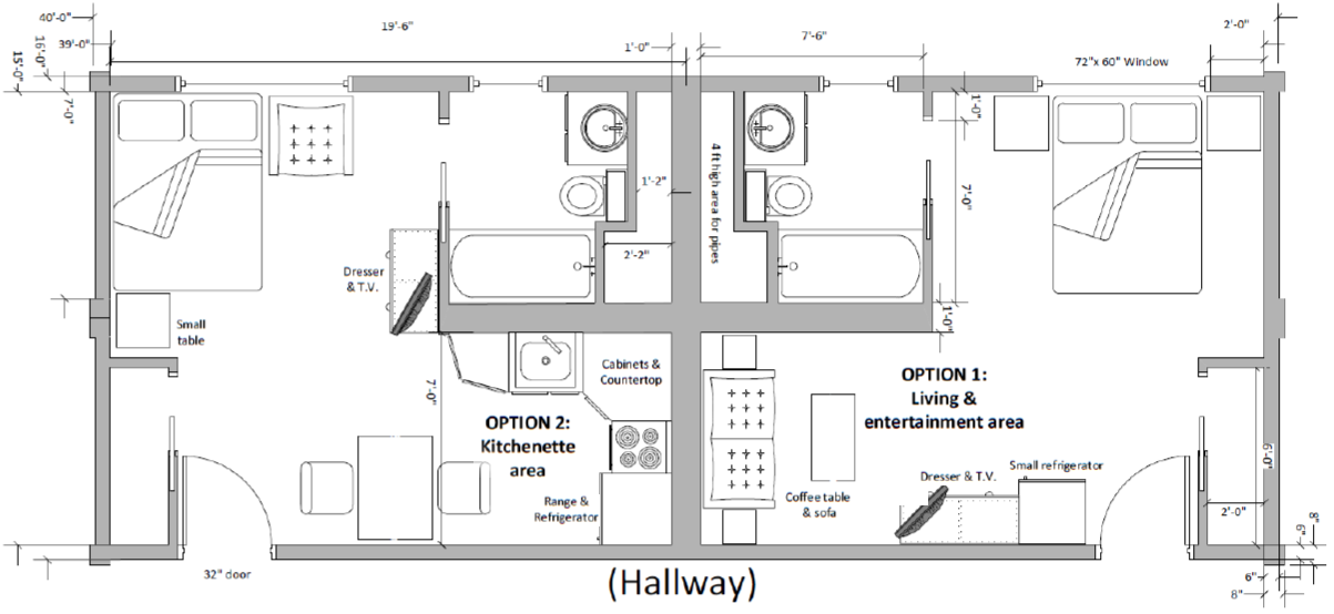
Studio Series multipurpose module (side entrance)
IDEAL for your hotel projects, this module offers all the amenities available that a typical business suite has to offer…and more! Options to add kitchenettes, disability access or “executive perks” are available.
Key Features
- Full bathroom (includes a full bathtub)(walk-in tub option)
- Large windows & increased lighting
- Individual room air conditioning & heating controls
- Telephone, internet & cable availability
- Fully furnished (option)
- Wheelchair accessibility (option)
- Kitchenette option available (see next sheet for more details)
- Living room option available (see next sheet for more details)
- 1 year warranty on all products
- CSA approved
Our Studio module allows for a number of additional options.
Kitchenette option
The Kitchenette option allows you to create a more semi-permanent suite, excellent for monthly rentals.
Your guests/tenants will have all the amenities available a traditional home has to offer.

- 2 burner range,
- convection microwave oven,
- dorm size refrigerator with freezer,
- laminate countertop
- cabinetry with solid wood doors
- cooking equipment (optional)
Living room option
Our most common request for the hotel design, this option is also excellent for structures such as senior’s residence and other buildings where food is prepared elsewhere.
Allow your guest/tenants the extra room to relax or to setup a small working area, in comfort.

- Additional telephone, internet & cable accessibility
- Fully furnished (option)
Prices will be based on a single module purchase
Additional savings will be provided on multiple module purchases
Drawings are for informational purposes only and may vary from actual finished product.
Unauthorized distribution or duplication of this drawing is not permitted without expressed written consent.
