These modules will increase your cash flow potential on future projects like no other product on the market! The “scalable” nature of the design allows for cost effective solutions to be applied to your structure. They can be used for hotels, motels, townhouses, condos, or apartment buildings.
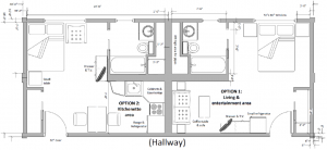
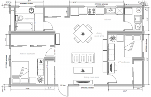
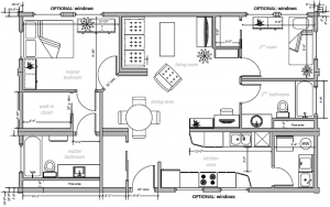
The following floor plans when combined can create a building with any number of units. The building can be made up of one or more of these floor plans. For a multi-story building, generally speaking, the same floor plan should be stacked on top each other so plumbing and electrical can tie in.
By keeping the designs simple & customization to a minimum, your costs are significantly reduced compared to other traditional builders and modular assemblers. We are able to modify your structure to fit any demands (local laws, codes, etc.) at a fraction of traditional costs.
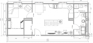
Studio Unit
Options to add kitchenettes, disability access or “executive perks” are available.



